Cegléd

Eladó új építésű lakás Cegléd belvárosában 11 lakásos liftes társasház 2. emeletén (7B)

Ár

90 millió Ft

Alapterület

106 m2

Szobák

2 + 2 fél

Építés éve

2026

Ingatlan adatai:

Ingatlan állapota: új építésűTelek mérete: 1 m2
Ingatlan jellege: lakásKomfort: összkomfortos
Falazat: téglaTetőtér: nem tetőtéri
Tároló: vanFürdő és WC: külön és egyben is
Tájolás: Belmagasság: 274 cm
Fűtés típusa: fan-coll, hőszivattyúSzobák száma: 2 + 2 fél
Szigetelés: vanLift: van
Parkolás: udvari beállóParkolóhelyek száma:
Udvar: kertErkély: nincs
Terasz: nincs

Ingatlan leírása:

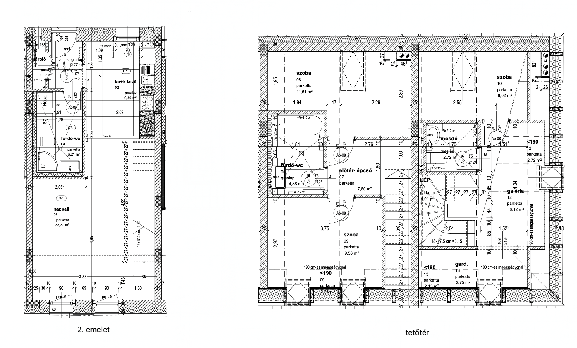
Eladó új építésű lakás Cegléd belvárosában liftes társasház 2. emeletén! Az átadás várható időpontja: 2027. nyara. Az ingatlan főbb jellemzői:

  • 43,07 + 63,17 m2 hasznos alapterület,
  • belső kétszintes lakás (2. emelet és tetőtér),
  • 2 + 2 félszoba,
  • belmagasság 274 cm,
  • hőszivattyús hűtés-fűtés,
  • padlófűtés és fan-coil,
  • hőszigetelt műanyag nyílászárók,
  • lift,
  • fedett gépkocsibeálló vásárolható, melynek értéke 5M Forint,
  • kiváló elhelyezkedés.
Ez a kiváló elhelyezkedésű társasház a központtól pár lépésre található, így a Belváros könnyedén megközelíthető. Az épületben 11 lakás, 2 üzlet és 12 fedett gépkocsibeálló kerül megépítésre. Mind a környék infrastruktúrája, mind pedig a belvárosi elhelyezkedés biztosítja, hogy az itt lakók mindent elérjenek percek alatt: számos bevásárlási lehetőség, óvodák, iskolák, piac, gyógyszertár, posta vagy játszótér, parkok csupán karnyújtásnyira. A kiváló lokáció miatt kiemelkedő az ingatlanok kiadhatósága is. Remek befektetés! Az épület nem csupán egy külsőleg modern lakóház, de a tervezésnek és kivitelezésnek köszönhetően a minőségi anyagfelhasználás jellemzi, fenntarthatóságát modern gépészeti megoldásokkal kívánjuk erősíteni. A tervezett gépészeti rendszerekkel nem csak az épület fűtését kívánjuk megoldani, hanem a nyári hűtését is. Központi szerephez jutnak a modern energiatakarékos megoldások, hőszivattyús fűtési rendszert alakítunk ki mennyezet hűtés és-fűtéssel. A fűtési rendszer padlófűtés és Fan Coilos fűtés, a hűtő berendezés Fan Coilos hűtés. A hőenergiát levegő-víz hőszivattyús rendszer biztosítja, minden lakásban külön-külön. Ugyanazon levegő-víz hőszivattyús berendezés biztosítja a lakások hűtését, mint fűtését. A hőmegtartást korszerű hőszigetelés és korszerű nyílászárók biztosítják. Nappali plusz 2 szobás, különböző méretű, tájolású és árfekvésű lakástípusok elérhetőek, legyen szó csendes udvarra néző családi otthonról saját zöld terasszal vagy utcára néző lakásokról esetleg második emeleti kétszintes lakásokról, mindenki megtalálhatja a hozzá illő ingatlant. A lakásokhoz a földszinten biztosított fedett parkoló vásárolható. Hívjon és válasszuk ki együtt az Önnek megfelelőt! További részletekért és bővebb információért kérem hívjon! Amennyiben hitelre vagy CSOK-ra van szüksége, irodánk teljes körű ügyintézéssel, ingyenes és bankfüggetlen hitel tanácsadással várja. A hirdetésben szereplő információk a megbízótól kapott adatok alapján készültek, pontosságukért felelősséget nem vállalunk! A hitelkalkuláció eredménye tájékoztatás, nem teljeskörű és nem számít ajánlattételnek!                                   #legjobbotthoningatlaniroda #legjobbotthon #ingatlancegléd #cegléd #ceglédiingatlan #ceglédilakás #ceglédieladóingatlan #ceglédiház #eladóingatlancegléd #ceglédkörnyéke #ceglédingatlanos #1,5% #eladóingatlan #eladóház #eladólakás #ingatlan #ingatlanpiac #otthon #lakásvásárlás #házvásárlás #befektetés #ingatlanbefektetés #kiadó #kiadóingatlancegléd #CSOK #tápióság #csemő #albertirsa #ceglédbercel #pilis  

Érdekli ez az ingatlan?

Telefon

+36 20 232 6820

Írjon nekem!