Cegléd
Eladó kiváló lokációjú újépítésű földszinti lakás Cegléden (2.)
Ár
57.5 millió Ft
Alapterület
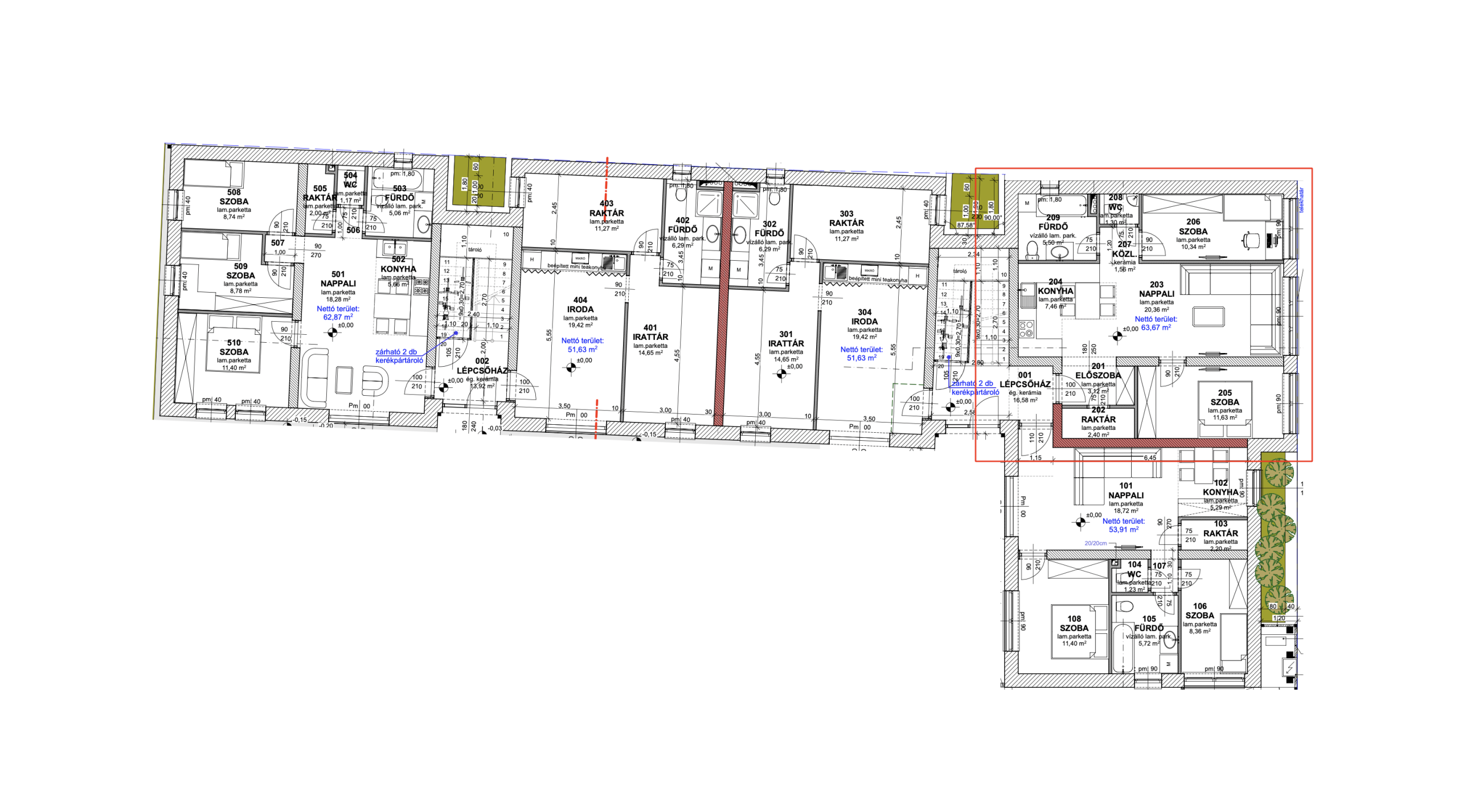
63,67 m2
Szobák
1 + 2 fél
Építés éve
2026
Ingatlan adatai:
| Ingatlan állapota: új építésű | Telek mérete: 1037 m2 |
| Ingatlan jellege: lakás | Komfort: összkomfortos |
| Falazat: tégla | Tetőtér: |
| Tároló: nincs | Fürdő és WC: külön és egyben is |
| Tájolás: | Belmagasság: cm |
| Fűtés típusa: hűtő – fűtő klíma, padlófűtés, hőszivattyú | Szobák száma: 1 + 2 fél |
| Szigetelés: van | Lift: nincs |
| Parkolás: udvari beálló | Parkolóhelyek száma: |
| Udvar: kert | Erkély: nincs |
| Terasz: nincs |
Ingatlan leírása:
Eladó kiváló lokációjú újépítésű földszinti lakás Cegléden! Az ingatlan főbb jellemzői:
- 63,67 m2 hasznos alapterület,
- földszinti elhelyezkedés,
- 45-ös Viablokk falazóelem,
- Terrán cserép fedés,
- víz, villany, csatorna bekötve,
- hőszivattyús klímás hűtés-fűtés padlófűtéssel kiegészítve,
- 3 rétegű műanyag hőszigetelt nyílászárók,
- 1 + 2 félszoba,
- „H” óra igényelhető a későbbiekben,
- egyedi mérők (víz és villany),
- minőségi burkolatok,
- fürdőszoba: kád/zuhanyzó, szaniterek, csap, led tükör, fűthető törölközőszárító,
- elektromos vízmelegítő,
- biztonsági bejárati ajtó,
- udvari beálló vásárolható, melynek ára + 1,9M Ft,
- elektromos kapu,
- tervezett átadás 2027. június.













