Cegléd
Eladó kiváló elhelyezkedésű 2. emeleti újépítésű lakás Cegléden (14.)
Ár
48.4 millió Ft
Alapterület
46,89 m2
Szobák
2
Építés éve
2028
Ingatlan adatai:
| Ingatlan állapota: új építésű | Telek mérete: 1 m2 |
| Ingatlan jellege: lakás | Komfort: összkomfortos |
| Falazat: tégla | Tetőtér: |
| Tároló: van | Fürdő és WC: egy helyiségben |
| Tájolás: | Belmagasság: cm |
| Fűtés típusa: hőszivattyú | Szobák száma: 2 |
| Szigetelés: van | Lift: nincs |
| Parkolás: udvari beálló | Parkolóhelyek száma: |
| Udvar: kert | Erkély: nincs |
| Terasz: nincs |
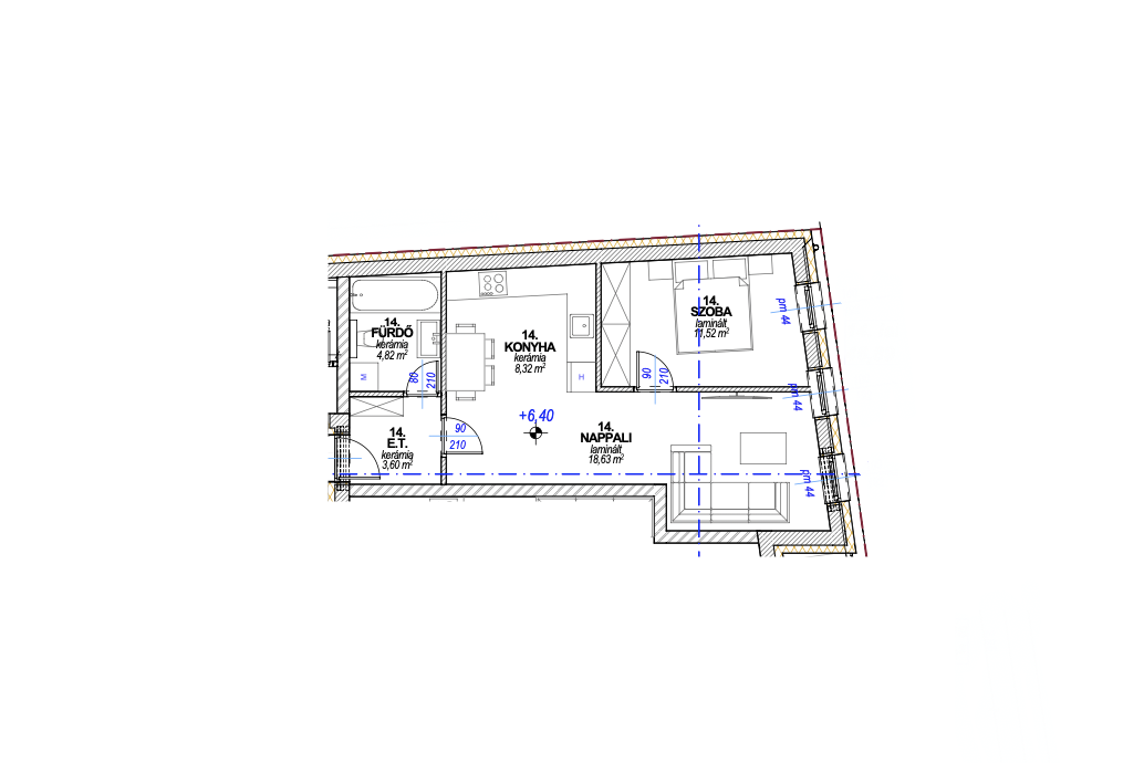
Ingatlan leírása:
Cegléd városában, Budapesttől mindössze kb. 70 km-re, kiváló közúti és vasúti megközelíthetőséggel kínálunk megvételre lakásokat egy 15 lakásos új építésű társasházban. Ne maradjon le róla! Kiváló elhelyezkedés, magas műszaki tartalom, megbízható, ismert kivitelező. A modern műszaki megoldásoknak köszönhetően a lakások fenntartási költsége kedvező, ideális választás első lakásvásárlóknak, befektetőknek vagy családalapítás előtt állóknak is. Az ingatlan főbb jellemzői:
- 46,89 m2 hasznos alapterület,
- 2. emeleti elhelyezkedés,
- 1 szoba + nappali,
- tégla falazat,
- hőszigetelés,
- hőszivattyús fűtés,
- a fürdőszobában kád kerül kialakításra, de felár ellenében zuhanyzós fürdőszoba kialakítására is van lehetőség (+0,8 millió Ft),
- padlástérben 4,89 m2 hasznos alapterületű taroló,
- zárt udvari parkoló igény szerint vásárolható (+10 M Ft),
- várható átadás 2028. május.







