Törtel
Eladó újépítésű 4 szobás könnyűszerkezetes passzívház Törtelen
Ár
67 millió Ft
Alapterület
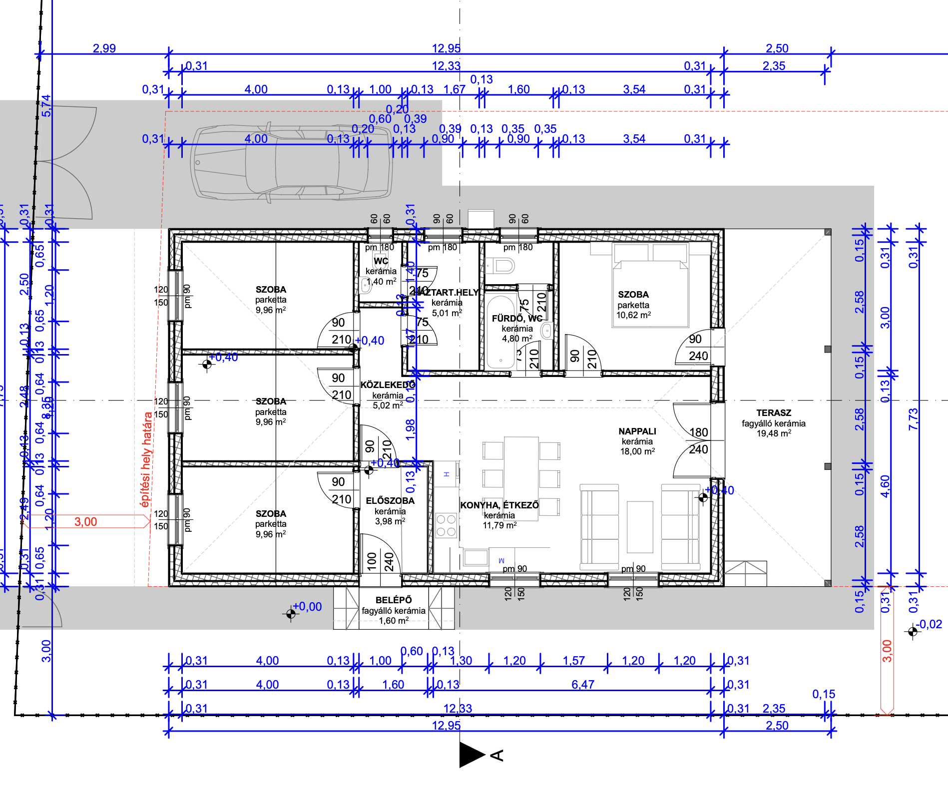
90,66 m2
Szobák
4
Építés éve
2026
Ingatlan adatai:
| Ingatlan állapota: új építésű | Telek mérete: 650 m2 |
| Ingatlan jellege: ház | Komfort: összkomfortos |
| Falazat: könnyűszerkezetes | Tetőtér: nem tetőtéri |
| Tároló: nincs | Fürdő és WC: külön és egyben is |
| Tájolás: | Belmagasság: cm |
| Fűtés típusa: hűtő – fűtő klíma, padlófűtés, hőszivattyú | Szobák száma: 4 |
| Szigetelés: van | Lift: nincs |
| Parkolás: udvari beálló | Parkolóhelyek száma: |
| Udvar: kert | Erkély: nincs |
| Terasz: van |
Ingatlan leírása:
Újépítésű, 4 szobás passzív minősítésű családi ház eladó – Grafitos MgO SIP panel technológiával Falusi CSOK-ra alkalmas | Energiahatékony | 9KW Hőszivattyú + klímarendszer Csendes, nyugodt környezetben kínálunk megvételre egy korszerű, újépítésű, passzív minősítésű családi házat, amely modern MgO SIP panel technológiával épül. Az ingatlan tervezése során az energiahatékonyság, a komfort és a hosszú távú fenntarthatóság kapta a főszerepet. Ideális választás mindazok számára, akik alacsony fenntartási költségű, műszakilag fejlett és értékálló otthont keresnek. Az ingatlan főbb jellemzői:
- 90,66 m2 hasznos alapterület,
- 20,88 m2 fedett terasz,
- 650 m2 telek 3D Antracit kerítéssel körbekerítve,
- 4 szoba,
- Grafitos MgO SIP szerkezet – passzív ház minősítés,
- teljes közműellátás (víz, villany, csatorna),
- saját fúrt kút,
- hőszivattyús fűtési rendszer,
- helyiségenként telepített klímaberendezések (5db),
- H-tarifa előkészítve,
- korszerű, hőszigetelt műanyag nyílászárók tükörreflexes üvegezéssel és motoros alumínium redőnyökkel,
- modern fehér–antracit homlokzati megjelenés
- Falusi CSOK igénybevételére alkalmas, így családok számára is kedvező támogatási és finanszírozási lehetőségekkel vásárolható meg,
- azonnal birtokba vehető.















