Cegléd
Eladó kiemelt műszaki tartalommal rendelkező prémium minőségű 1. emeleti otthon Cegléden (4.) – VIDEÓVAL
Ár
119.2 millió Ft
Alapterület
130 m2
Szobák
3
Építés éve
2025
Ingatlan adatai:
| Ingatlan állapota: új építésű | Telek mérete: 800 m2 |
| Ingatlan jellege: lakás | Komfort: duplakomfortos |
| Falazat: tégla | Tetőtér: nem tetőtéri |
| Tároló: van | Fürdő és WC: külön és egyben is |
| Tájolás: | Belmagasság: cm |
| Fűtés típusa: padlófűtés, hőszivattyú | Szobák száma: 3 |
| Szigetelés: van | Lift: nincs |
| Parkolás: udvari beálló | Parkolóhelyek száma: |
| Udvar: kert | Erkély: van |
| Terasz: nincs |
Ingatlan leírása:
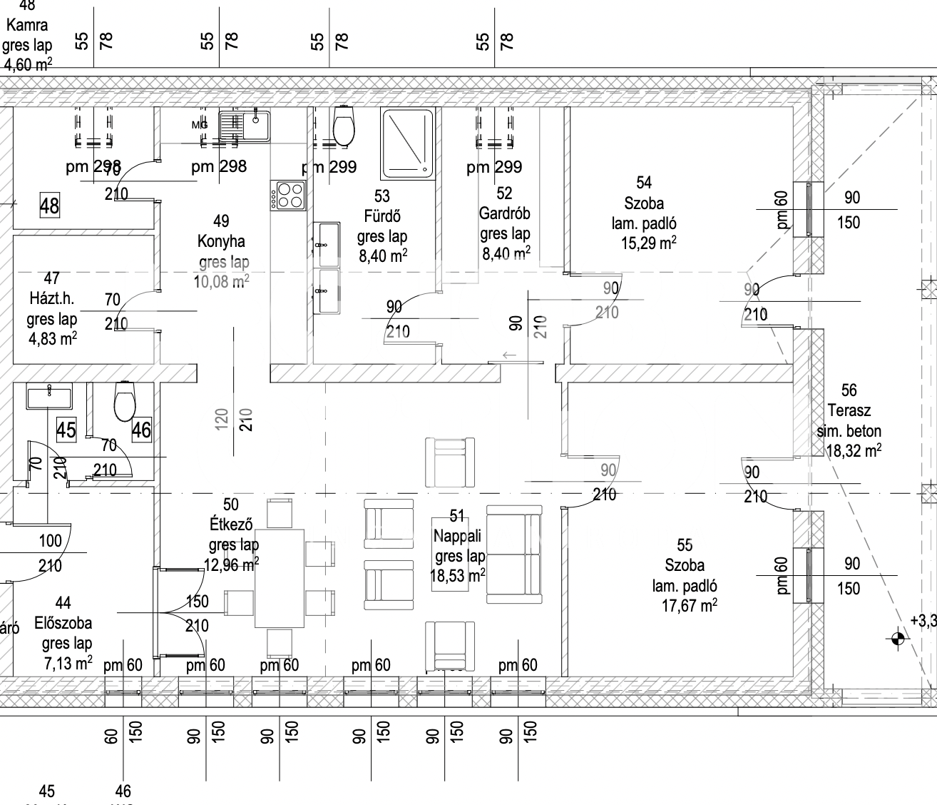
Kizárólag csak nálunk elérhető!! Kiemelt műszaki tartalommal rendelkező prémium kategóriás földszinti otthont keres Cegléden? Az ingatlan főbb jellemzői:
- 2025-ben épült,
- 4 lakásos társasházban található,
- 111,41 m2 hasznos alapterület,
- 18,32 m2 erkély,
- 1. emeleti elhelyezkedés,
- 800 m2 telek,
- 30 cm-es vázkerámia falazat,
- 20 cm-es grafitos hőszigetelés,
- 40 cm-es hőszigetelés a födémen,
- cserép fedés,
- 2 szoba + nappali,
- beépített konyhabútor,
- központi padlófűtés hőszivattyúval,
- napelemrendszer,
- szellőztetőrendszer,
- klíma,
- műanyag 3 rétegű üvegezéssel ellátott nyílászárók elektromos alumínium redőnyökkel,
- víz, villany (3×32 A ipari áram) és csatorna bekötve,
- fúrt kút,
- gáz a telken belül,
- A+ energetikai besorolás,
- udvari beálló,
- 1/1 tehermentes tulajdon,
- azonnal birtokba vehető.
























