Cegléd
Eladó belső kétszintes kulcsrakész lakás Cegléden (L4/L2)
Ár
57 millió Ft
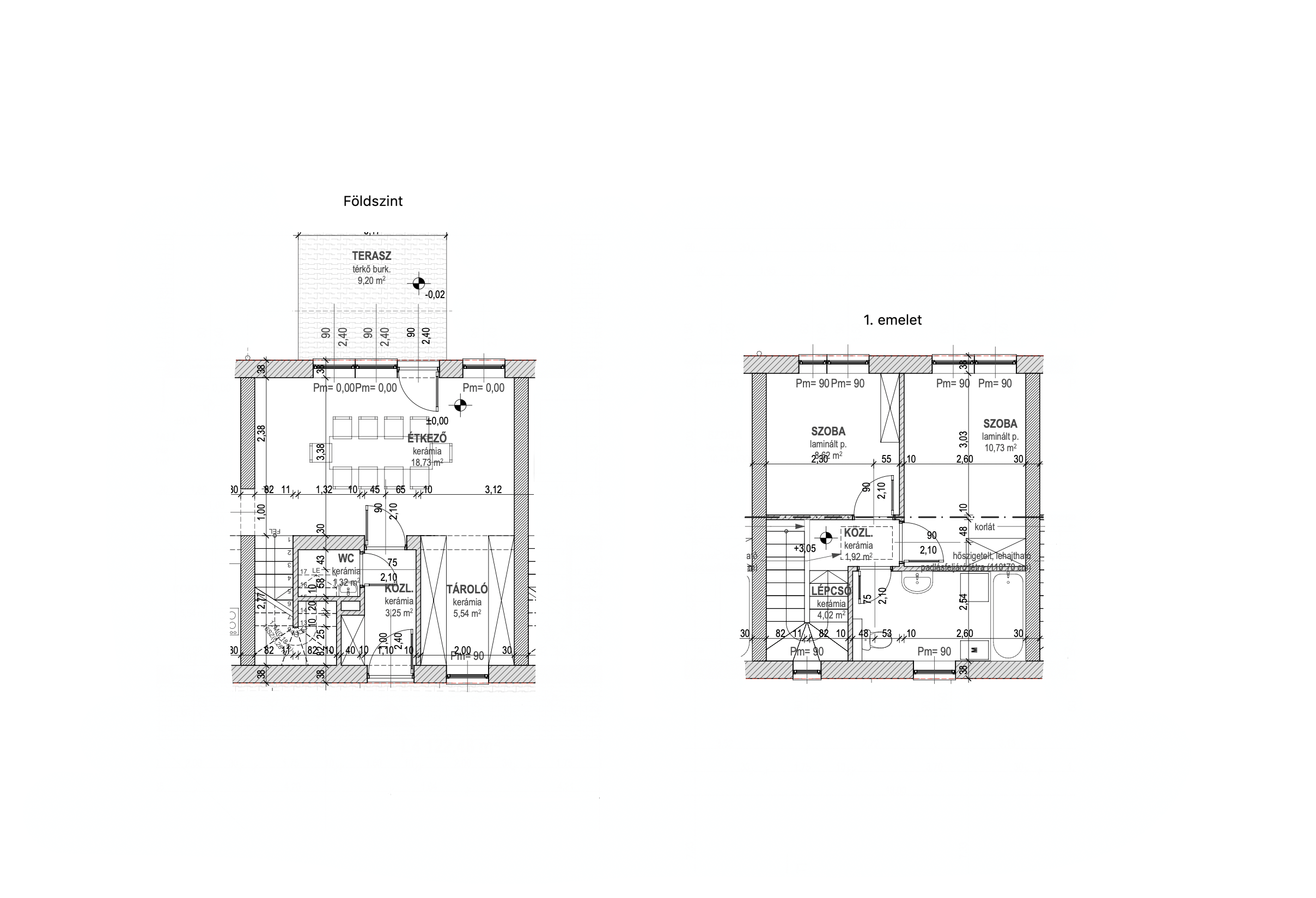
Alapterület
61,24 m2
Szobák
2
Építés éve
2026
Ingatlan adatai:
| Ingatlan állapota: új építésű | Telek mérete: 1 m2 |
| Ingatlan jellege: lakás | Komfort: összkomfortos |
| Falazat: tégla | Tetőtér: |
| Tároló: | Fürdő és WC: egy helyiségben |
| Tájolás: | Belmagasság: cm |
| Fűtés típusa: hőszivattyú | Szobák száma: 2 |
| Szigetelés: van | Lift: nincs |
| Parkolás: | Parkolóhelyek száma: |
| Udvar: nem parkosított | Erkély: nincs |
| Terasz: van |
Ingatlan leírása:
ÚJ ÉPÍTÉSŰ TÁRSASHÁZI LAKÁSOK CEGLÉD BELVÁROSÁBAN – KOCSIBEÁLLÓVAL! Cegléd szívében, a Hunyadi utcában, kiváló elhelyezkedésű, új építésű 6 lakásos társasházban kínálunk eladásra modern, lakásokat!
- Várható átadás: 2026 nyara
- Ajándék gépkocsibeálló + tároló minden 60 m2 feletti lakáshoz
- Lakásméret: 38.7 – 72,5 m²
- Irányár: 36.180 millió Ft-tól
- Minőségi kivitelezés
- Korszerű műszaki tartalom
- Kiváló befektetés és első otthonnak is tökéletes.







