Tápiószele
Eladó 1 szobás felújított lakás Tápiószelén kiváló ár-érték arányban (3.)
Ár
32 millió Ft
Alapterület
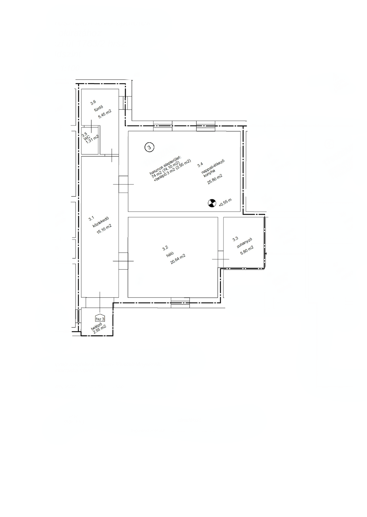
74,1 m2
Szobák
2
Építés éve
Ingatlan adatai:
| Ingatlan állapota: felújított | Telek mérete: 1 m2 |
| Ingatlan jellege: lakás | Komfort: |
| Falazat: vegyes | Tetőtér: |
| Tároló: van | Fürdő és WC: külön helyiségben |
| Tájolás: | Belmagasság: cm |
| Fűtés típusa: gázkazán, padlófűtés | Szobák száma: 2 |
| Szigetelés: van | Lift: nincs |
| Parkolás: | Parkolóhelyek száma: |
| Udvar: kert | Erkély: nincs |
| Terasz: nincs |
Ingatlan leírása:
Eladó 1 szobás felújított lakás Tápiószelén kiváló ár-érték arányban! A társasházban elérhető összesen 9 db 40,53 – 77,8 m2 hasznos alapterület közötti lakás és egy raktárnak is alkalmas pince. A lakások árai 16.990.000 Ft-tól 33.990.000 Ft-ig terjednek. Az ingatlan főbb jellemzői:
- igényesen felújított épület,
- 74,1 m2 hasznos alapterület,
- vegyes falazat,
- 15 cm hőszigetelés,
- cserép fedés,
- 1 szoba + nagy nappali,
- 2 fürdőszoba,
- padlófűtés gázkazánnal,
- klíma,
- műanyag nyílászárók,
- minden lakáshoz külön kert tartozik,
- villany és víz külön mérőórán,
- gáz külön almérőórán,
- tároló,
- a lakások külön helyrajzi számon vannak,
- azonnal birtokba vehető.













