Cegléd
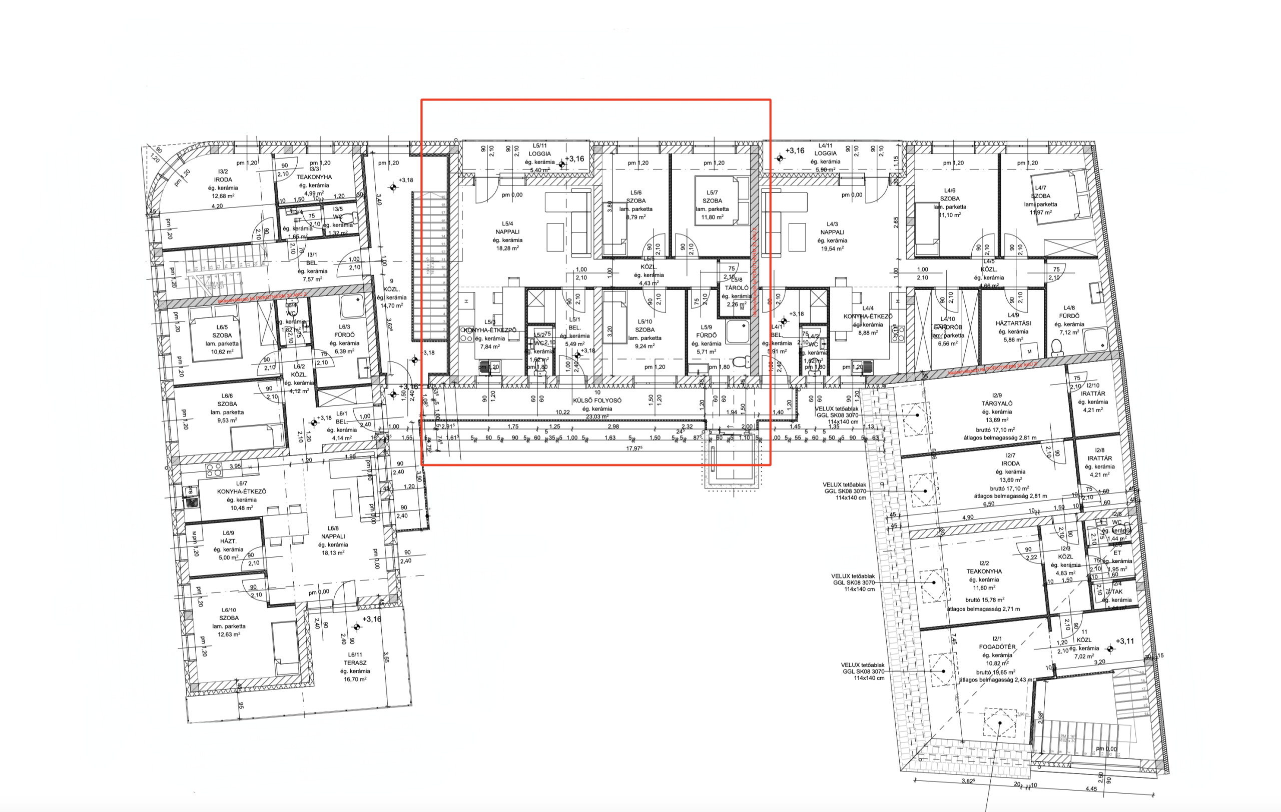
Eladó 1 + 2 félszobás + nappalis 1. emeleti liftes társasházi lakás Cegléden (5.)
Ár
76.6 millió Ft
Alapterület
78,16 m2
Szobák
2 + 2 fél
Építés éve
2026
Ingatlan adatai:
| Ingatlan állapota: új építésű | Telek mérete: 894 m2 |
| Ingatlan jellege: lakás | Komfort: összkomfortos |
| Falazat: tégla | Tetőtér: |
| Tároló: nincs | Fürdő és WC: külön és egyben is |
| Tájolás: | Belmagasság: cm |
| Fűtés típusa: fan-coll, hőszivattyú | Szobák száma: 2 + 2 fél |
| Szigetelés: van | Lift: van |
| Parkolás: udvari beálló | Parkolóhelyek száma: |
| Udvar: kert | Erkély: van |
| Terasz: nincs |
Ingatlan leírása:
Eladó 1 + 2 félszobás + nappalis 1. emeleti liftes társasházi lakás Cegléden. Az ingatlan főbb jellemzői:
- 75,46 m2 hasznos alapterület,
- 5,4 m2 loggia,
- 894 m2 telek,
- Porotherm N+F tégla falazat,
- Bramac betoncserép fedés,
- 15 cm EPS hőszigetelés,
- 1. emeleti elhelyezkedés,
- 1 + 2 félszoba + nappali,
- összközműves,
- 3×16 A áramerősség,
- fűtés és melegvíz ellátás geotermikus hőszivattyú segítségével,
- fan-coil hűtés,
- háromfázisú napelemredszer,
- műanyag nyílászárók,
- lift,
- tervezett átadás: 2026. év vége,
- megbízható kivitelező által építve.





